Small acreage with fabulous rural views
Sought after address – Table Cape Road just minutes from town centre. Solid 1970’s brick home with stunning rural, town & water views sitting proudly on over 12 acres of land.
Located only 5 minute drive to town, or 5 minute walk to Wynyard’s walking tracks this home offers natural springs, waterfall and a family of geese setting that picture perfect scene. This property offers the tranquil, peaceful lifestyle you've always dreamt of.
Features include:-
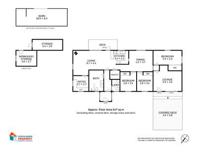
- Open plan living area with new Pellet heater;
- Tas Oak kitchen with gas cooktop and pantry;
- Spacious dining area;
- 2nd living room which opens onto the fenced/covered BBQ area.
- 3 Bedrooms all with built-in wardrobes;
- Additional study or 4th bedroom;
- New bathroom with walk-in shower and toilet;
- Separate laundry with second toilet;
On the outside:-
- Storage room and workshop area under the house;
- 18 x 6m Barn;
- All set on 12 acres of land
- Town water
- There’s plenty of room in front of the home to park multiple cars for family and visitors.
This acreage is the perfect property to enjoy a relaxed lifestyle. Enjoy pottering in the garden, or sit out on the balcony with a good book and relax after a long day at work or enjoy the covered entertainment area of an evening sitting by the fire pit.
Highly recommended inspection to appreciate the potential this property has to offer.
Disclaimer: at Sonya Baker Property we make every attempt to ensure that all information provided about the property is accurate and honest with information provided from our vendor, legal representation and other information sources. Therefore we cannot accept any responsibility for its true accuracy and advise all of our clients to seek independent advice prior to proceeding with any property transaction.
- Outdoor Entertainment Area
- Built-in Wardrobes
- Dishwasher
- Study


















































