Coastal Dual Living Retreat in Beautiful Boat Harbour, Tasmania
A rare opportunity in one of Tasmania’s most breathtaking coastal pockets. This dual living property offers two fully independent homes, each capturing expansive, ever changing water views that shift with the light and seasons. Set against a backdrop of rolling rural landscapes, the property blends tranquillity with versatility.
The grounds feature an established, vibrant garden bursting with colour year round, creating a peaceful sanctuary for outdoor living. Adding to the home’s charm are unique hand crafted mosaic walls, giving the property a distinctive artistic character you won’t find anywhere else.
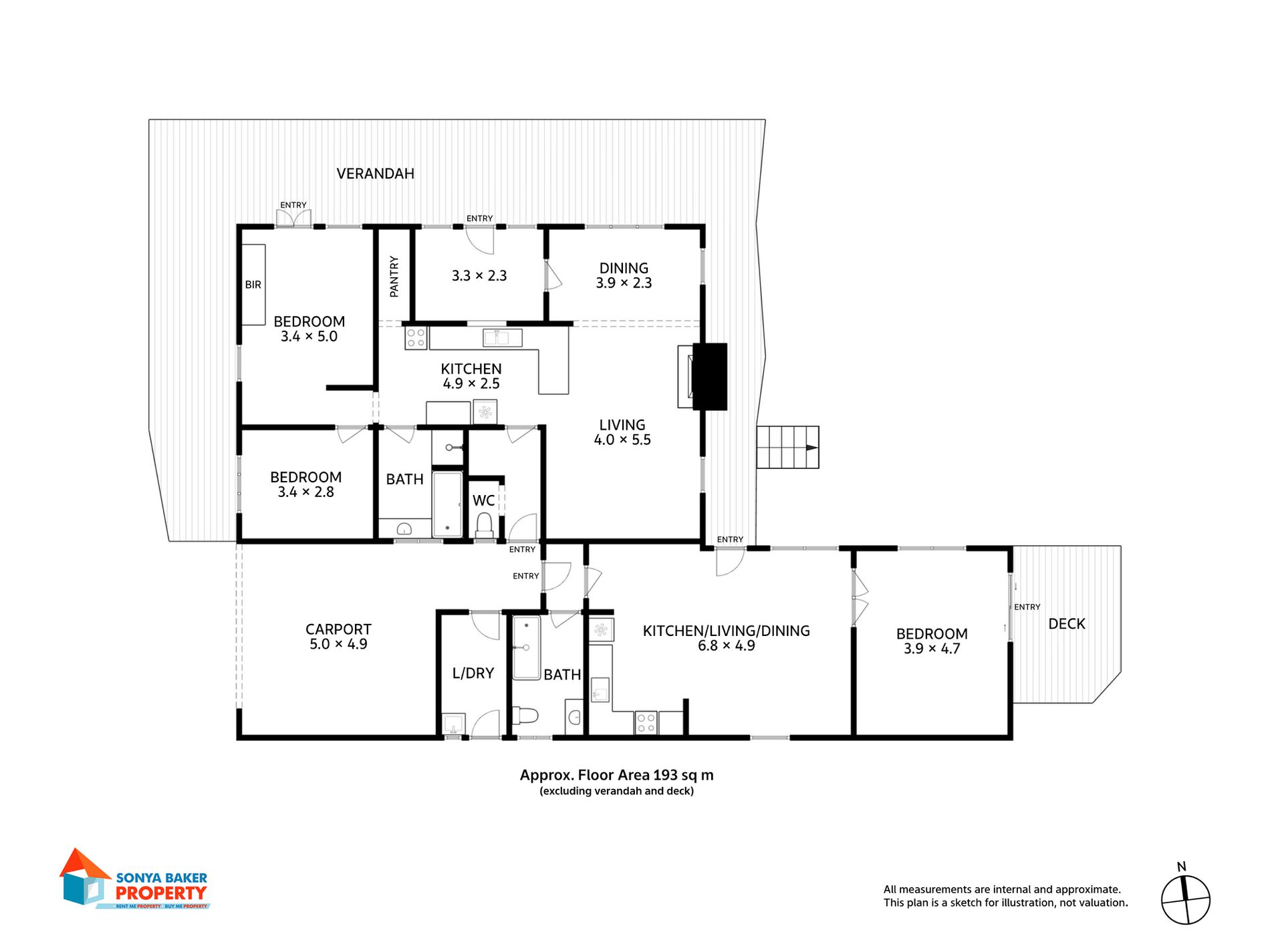
Home No. 1:
• Comprises original rustic timbers that bring warmth, character, and artistry to the space.
• Open plan living area with wood heater and heat pump
• Baltic pine kitchen;
• 2 Bedrooms;
• 1 Bathroom;
• Separate sunroom
• Wrap around deck area taking in the water and rural views
• Single carport
• House size - 193m2
• A well designed separate wing of the home offers open plan living, a private bedroom, and the flexibility to function as a fully self contained flat. Ideal for generating additional income, hosting guests, or providing independent living for family members.
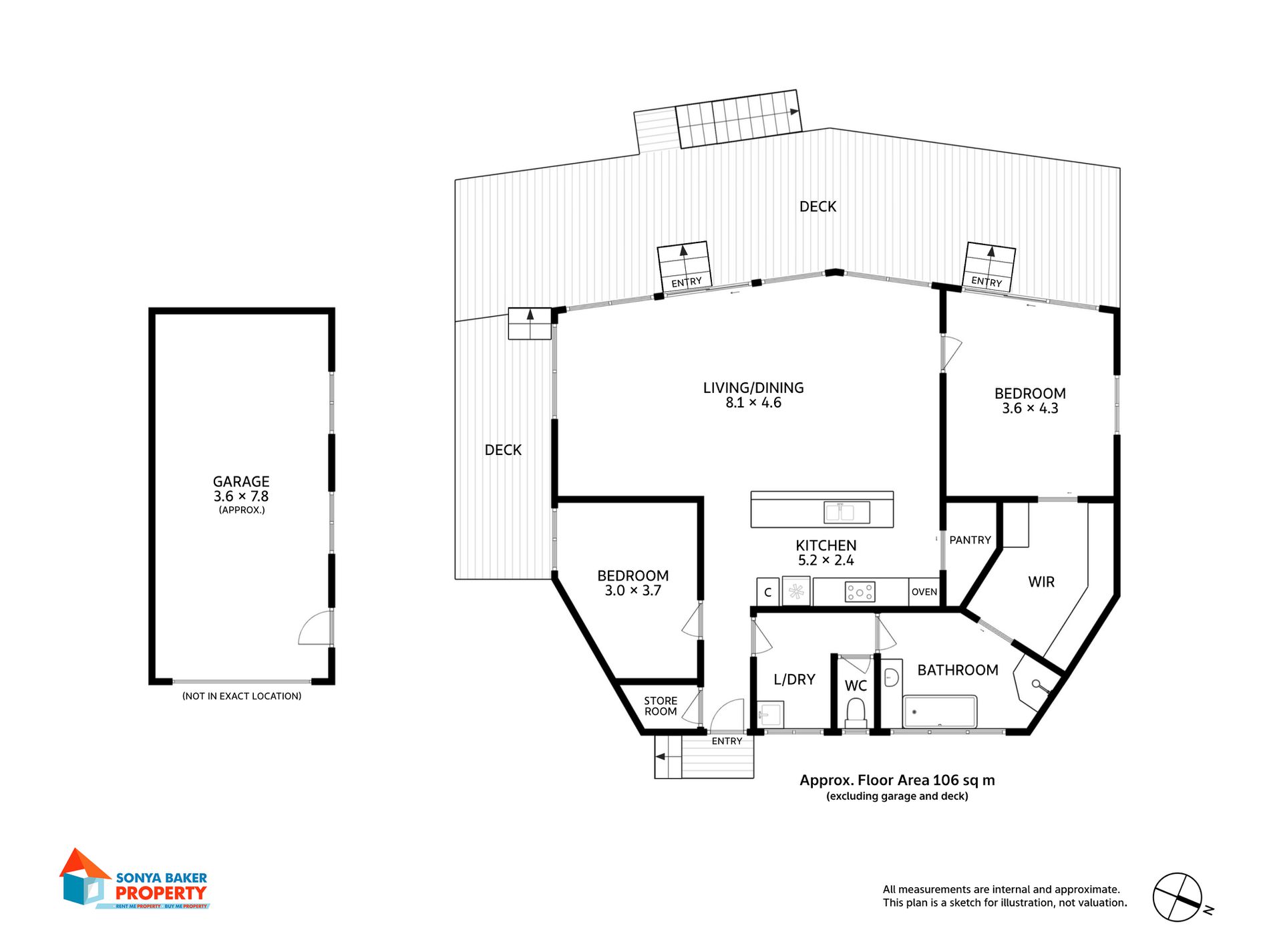
Home No 2:
• Open plan living area with heat pump
• 2 bedrooms (main bedroom with walk-in wardrobe)
• Main bathroom with separate shower & bath
• Current Rental - $400 per week
• House size - 106 m2
Exterior:
• Fully fenced
• Bore water and gas hot water
• Shed 3.6 x 7.8 metres
Ideal for multi generational living, guest accommodation, or an income producing retreat, this property blends natural beauty with creative craftsmanship in one of Tasmania’s most sought after coastal pockets with Boat Harbour Beach located at your door step, just a short walk away.


































































